塔机合理的定位不仅可以提高施工的效率,更是安全的保证。反之则可以会发生起重臂相碰,或者吊物会触及外电线路等安全事故,以下我以一些实例来进行说明。
1、某电厂改造项目

以上是一个电厂改造项目的塔机布置平面图。在对这塔机定位的时候,需要避开原电厂的各个建筑,特别需要注意的是两处,一是西南角的类圆柱形的烟囱,二是东南角的另一外塔机。为保证塔机的作业面,这台塔机选择的臂长是80m。但是根据说明书中所述,起重臂的端部距塔机中心的长度为83m。在图纸上起重臂的端部距烟囱的外缘仅有1m左右了。在实际作业的时候,1m的间距是偏小的。应尽可能避免。对于东南角的塔机,需要注意的是起重臂与塔身之间的间距。
2、某商业楼群项目

以上是一个用于商业楼群的塔机。从图上可知,大部分的塔机在拆卸时,辅助汽车吊的停位位置距塔机中心的距离都很远,除T4塔机外。出现这样的情况是因为塔机在定位的时候,仅考虑了作业面,没有仔细去核对地下室的顶板的各个图纸。实际上这个项目完成之后,楼群中间的部分是一个类似天井的结构,完全没法停汽车吊,所以只能将拆卸吊安排在用地红线的外侧,大大增加了项目上的拆卸塔机的成本。
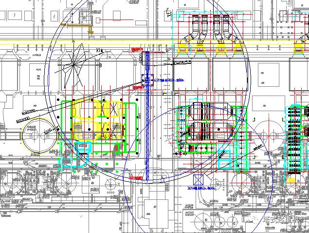
3、某商业楼项目

以上是一个商业楼项目。项目上为保证商务主楼的进度,放置了两台塔机(1#与2#)。但是从图上可以看出,1#与2#的起重臂是相互会与对方塔身相交,这是因为在地下室施工阶段,1#与2#塔机如果没有这样的臂长,将使得材料的倒运出现极大的困难。见下图中2#塔机小一号的作业范围是臂长截短5m之后的范围,虽然使得2#塔机可以与1#塔机的塔身有相错的空间,但是与栈桥将没有在相交的范围。故项目上为了施工的进度,在对2#塔机的回转进行限位后,牺牲安全以保证生产。

另外,3#塔机位于群房内,此群房最高为11层,不仅对安装的时候起重臂的安装方向有要求,也使得拆卸带来困难;5#与6#之间虽然从图上看起来起重臂端部距对方塔机也仍然有些距离,但是在实际安装之后,低位塔机的起重臂的端部正好擦到高位塔机的塔身,一是这个图并没有把实际的臂端至塔身的中心的距离进行核验,二是可能现场的定位也出现了些许的偏差。